INSTRUÇÃO TÉCNICA Nº 01/2025

(Aprovado pela Portaria n° 673, de 05/09/2025, a partir de 06/11/2025)

Procedimentos administrativos Parte II – Orientações para licenciamento

SUMÁRIO

1 Objetivo;

2 Aplicação;

3 Referências normativas e bibliográficas;

4 Definições;

5 Formas de apresentação;

6 Procedimento de vistorias;

7 Formulário para atendimento técnico;

8 Solicitação de vistoria por autoridade competente;

9 Câmara técnica;

10 Critérios para recolhimento da TARIP e TEAV

11 Informatização da Diretoria de Atividades Técnicas.

ANEXOS

A Memorial Descritivo

B Formulário de Avaliação de Risco (FAR) de incêndio para Processo Técnico Simplificado (PTS);

C Planta de risco de incêndio;

D Implantação;

E Planta das medidas de segurança contra incêndio;

F Quadro resumo das medidas de segurança;

G Memorial industrial de segurança contra incêndio;

H Formulário para atendimento técnico (FAT);

I Atestado de brigada de incêndio;

J Requerimento de Câmara Técnica;

K Formulário de requerimento para migração de processos;

L Termo de responsabilidade das saídas de emergência;

M Declaração de edificação desabitada;

N Planta de instalação e ocupação temporária;

O Atestado de conformidade da instalação elétrica;

P Termo de compromisso para liberação por etapas;

1 OBJETIVO

Estabelecer os critérios para apresentação de processo de segurança contra incêndio, das edificações e áreas de risco, atendendo ao previsto na Lei Complementar nº 601 de 07 de agosto de 2017– Código Estadual de Segurança Contra Incêndio e Pânico (CESIP) do Estado do Rio Grande do Norte, alterada pela Lei Complementar Nº 704, de 1º de abril de 2022.

2 APLICAÇÃO

2.1 Esta Instrução Técnica (IT) aplica-se aos processos de segurança contra incêndio adotados pelo Corpo de Bombeiros Militar do Estado do Rio Grande do Norte (CBMRN).

3 REFERÊNCIAS NORMATIVAS E BIBLIOGRÁFICAS

Constituição Federal da República Federativa do Brasil, de 5 de outubro de 1988, artigo 144, § 5°. Constituição do Estado de São Paulo, de 5 de outubro de1989, artigo 142.

Instrução Técnica nº 01 do Corpo de Bombeiros da Polícia Militar do Estado de São Paulo.

Lei Federal nº 13.874/2019 – Institui a Declaração de Direitos de Liberdade Econômica.

Lei Federal n° 7.256/84, de 3/12/1984, inciso 7, artigo 11.

Lei Complementar nº 230, de 22 de março de 2002 – Dispõe sobre o Corpo de Bombeiros Militar do Estado do Rio Grande do Norte, fixa o efetivo da Corporação, e dá outras providências.

Lei Complementar nº 601 de 07/08/2017 – Institui o Código Estadual de Segurança Contra Incêndio e Pânico (CESIP) do Estado do Rio Grande do Norte, altera a Lei Complementar n° 247 de 2002, revoga a Lei Estadual n° 4.436 de 1974, e dá outras providências.

Lei Complementar Nº704, 01/04/2022 - Altera a Lei Complementar Estadual nº 601/2017; a Lei Complementar Estadual nº 247/2002; a Lei Complementar Estadual nº 230/2002; e dá outras providências.

Portaria nº 162/03 – Estabelece condições para legalização de estabelecimentos, bem como as exigências de segurança para a comercialização de fogos de artifícios.

Lei nº 9.187/99 – Dispõe sobre as medidas de segurança contra incêndio pertinentes a espetáculos pirotécnicos e dá outras providências.

Decreto nº 21.702/10, de 21 de junho de 2010 – Regulamenta a Lei nº 9.187/99.

Resolução CGSIM nº 58 De 12 de agosto de 2020 - Dispõe sobre a classificação de risco das atividades econômicas para fins de prevenção contra incêndio, pânico e emergências e as diretrizes gerais para o licenciamento pelos Corpos de Bombeiros Militares dos Estados e do Distrito Federal.

NBR 6492 – Representação de projetos de arquitetura.

NBR 8196 – Emprego de desenho técnico.

NBR 10068 – Folha de desenho – Leiaute e dimensões.

NBR 10067 – Princípios gerais de representação em desenho técnico.

NBR 12236 – Critérios de projeto, montagem e operação de postos de gás comprimido.

NBR 13273 – Desenho técnico – Referência a itens.

NBR 14699 – Desenho técnico – Representação de símbolos aplicados a tolerâncias geométricas – preparos e dimensões.

NBR 14611 – Desenho técnico – Representação simplificada em estruturas metálicas. Meirelles, Hely Lopes – Direito Administrativo Brasileiro, 25a edição – 2000 – Editora Malheiros.

Lazzarini, Álvaro – Estudos de Direito Administrativo – Editora Revista dos Tribunais – 2000.

4 DEFINIÇÕES

Para os efeitos desta Instrução Técnica aplicam-se as definições constantes da IT/CBMRN 03 – Terminologia de segurança contra incêndio.

5 FORMAS DE APRESENTAÇÃO

As medidas de segurança contra incêndio nas edificações e áreas de risco devem ser apresentadas ao CBMRN para análise por meio de:

a. Projeto Técnico (PT);

b. Processo Técnico Simplificado (PTS);

c. Projeto para eventos temporários;

d. Formulário para Atendimento Técnico (FAT).

Nota:

Os documentos apresentados devem possuir assinatura manual, podendo ser apresentada a versão impressa de documentos assinados digitalmente, desde que seja possível verificar sua autenticidade por meio de um código de validação (código de verificação, QR Code ou um link para consulta em site específico).

5.1 Projeto Técnico

5.1.1 Características da edificação e áreas de risco

5.1.1.1 O Projeto Técnico deve ser utilizado para apresentação das medidas de segurança contra incêndio das edificações e áreas de risco, nos casos abaixo descritos:

I - Edificações classificadas como de alto risco, para fins de licenciamento.

a. A classificação de risco para fins de licenciamento é feita observando os critérios estabelecidos na Instrução Técnica nº 42 – Processo Técnico Simplificado.

b. Para fins do cômputo da quantidade de pavimentos, desconsidera-se o subsolo quando usado exclusivamente para estacionamento.

II - Independentemente da área da edificação e áreas de risco, quando estas apresentarem riscos que necessitem de proteção por sistemas fixos tais como: hidrantes, chuveiros automáticos, alarme e detecção de incêndio, dentre outros.

III - Edificações que possuem divisão L-1 com área superior a 100 m2, L-2 e L-3.

IV - Locais destinados à revenda e armazenamento de GLP classe II em diante.

V - Edificações com necessidade de comprovação da separação entre edificações e áreas de risco, conforme IT 07 – Separação entre edificações.

a. As edificações isoladas de acordo com a IT 07, com sistemas de segurança contra incêndio independentes, podem apresentar Projetos Técnicos independentes das demais edificações do lote ou condomínio, desde estejam vinculados a um único processo e que seja apresentada a implantação de toda a área.

b. As edificações existentes que possuem interligação entre blocos por meio de passarelas ou passadiço protegido, no mesmo lote ou entre edificações vizinhas, podem apresentar Projetos Técnicos independentes, desde que atendam todos os critérios previstos na IT 43.

c. Apesar de haver a possibilidade da apresentação dos projetos das edificações de forma independente, o lote ou condomínio deve possuir todas as suas áreas aprovadas.

5.1.1.2 Nos processos de regularização de edificações e áreas de risco, quando se tratar de agrupamentos compostos por múltiplos galpões, lojas, unidades funcionais ou quaisquer outras configurações construtivas que compartilhem o mesmo terreno ou lote, o critério que prevalece para definição da forma de apresentação do Projeto Técnico é o desmembramento formal perante o órgão municipal competente.

a. Edificações formalmente desmembradas junto à Prefeitura Municipal, com inscrição individualizada e registro próprio, serão regularizadas de forma independente, desde que não compartilhem áreas comuns que comprometam a autonomia das medidas de segurança contra incêndio e pânico, tais como acessos, circulações, sistemas de proteção, instalações prediais ou outras infraestruturas funcionais.

b. Quando houver compartilhamento de áreas comuns entre edificações, estas deverão ser tratadas como uma unidade para fins de regularização, ainda que possuam CNPJs distintos, lotes distintos,

finalidades comerciais diversas ou ocupações independentes. Nesses casos, o Projeto Técnico deverá ser apresentado de forma unificada, contemplando as medidas de segurança contra incêndio e pânico de todas as edificações.

c. A regularização individual de edificações em um agrupamento será permitida, desde que exista Projeto Técnico aprovado para o agrupamento como um todo, contemplando todas as edificações e áreas de risco envolvidas. Nesses casos, cada unidade poderá apresentar Projeto Técnico próprio, desde que atenda às exigências de isolamento de risco previstas na IT 07.

d. Para os fins desta Instrução Técnica, o termo “agrupamento” refere-se a qualquer conjunto de edificações ou áreas de risco que compartilhem o mesmo lote, terreno, matrícula, infraestrutura ou vínculo funcional, independentemente da denominação adotada — como complexo, condomínio, parque industrial, centro comercial, entre outros.

5.1.2 Composição

O Projeto Técnico deve ser composto pelos seguintes documentos:

a. Pasta do Projeto Técnico;

b. Memorial Descritivo (Anexo A) em duas vias;

c. Procuração do proprietário, quando este transferir seu poder de signatário;

d. Documento de Responsabilidade Técnica do responsável técnico pela elaboração do Projeto, que deve ser juntado na via que permanece na Diretoria de Atividades Técnicas;

e. Documentos complementares, quando necessário;

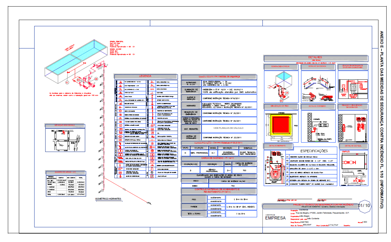
f. Planta das medidas de segurança contra incêndio, conforme Anexo E, em duas vias.

5.1.2.1 Pasta do Projeto Técnico

Pasta com frente de plástico transparente, com grampo, incolor, com identificação do número do processo, com elástico, semirrígida, que acondiciona todos os documentos do Projeto Técnico, afixados na sequência estabelecida no item 5.1.2. Deve ter dimensões de 215 mm a 280 mm (largura) x 315 mma 350 mm (comprimento) e altura conforme a quantidade de documentos.

5.1.2.2 Memorial Descritivo

Descrição dos sistemas de proteção contra incêndio existentes na edificação, sendo um resumo do que se encontra no Projeto Técnico, conforme Anexo A desta IT/CBMRN. Deve possuir numeração das páginas (01/XX, 02/XX... XX/XX), não sendo necessário manter páginas referentes a dispositivos que não integrem as medidas de segurança da edificação.

5.1.2.3 Procuração do proprietário

Deve ser apresentada, sempre que terceiro assine documentação do Projeto Técnico pelo proprietário.

5.1.2.4 Documento de Responsabilidade Técnica

a. O documento de responsabilidade técnica é o instrumento emitido por meio do conselho de classe do profissional para a comprovação de sua responsabilidade técnica.

b. Deve ser apresentado pelo responsável técnico que elabora o Projeto Técnico, fazendo referência as coautorias de projeto, caso existirem mais de um responsável;

c. Todos os campos devem ser preenchidos e no campo "descrição das atividades profissionais contratadas" deve estar especificado o serviço pelo qual o profissional se responsabiliza;

d. O documento de responsabilidade técnica deve ter caráter definitivo e estar assinado ou conter a certificação digital do responsável técnico;

e. A assinatura do contratante (proprietário ou responsável pelo uso) é facultativa;

f. Deve ser apresentada a 1ª via original ou fotocópia;

g. Pode ser emitida em outros estados, desde que atestado o registro do profissional.

5.1.2.5 Documentos complementares

Documentos solicitados pela Diretoria de Atividades Técnicas do CBMRN, a fim de subsidiar a análise do Projeto Técnico da edificação e áreas de risco, quando as características da mesma assim os exigirem:

5.1.2.5.1 Memorial industrial de segurança contra incêndio

Descrição dos processos industriais, matérias-primas, produtos acabados, líquidos inflamáveis ou combustíveis com ponto de fulgor, estoques, entre outros, conforme anexo G.

5.1.2.5.2 Memorial de cálculo

Memorial descritivo dos cálculos realizados para dimensionamento dos sistemas fixos contra incêndio, tais como hidrantes, chuveiros automáticos, pressurização de escada, sistema de espuma e resfriamento, controle de fumaça, dentre outros.

No desenvolvimento dos cálculos hidráulicos para as medidas de segurança de espuma e resfriamento devem ser levados em consideração o desempenho dos equipamentos, utilizando as referências de vazão, pressão e perda de carga, sendo necessária a apresentação de catálogos técnicos.

5.1.2.5.3 Memorial do sistema fixo de gases para combate a incêndio

Memorial descritivo do sistema fixo de gases para combate a incêndio, conforme IT/CBMRN 26 – Sistema fixo de gases para combate a incêndio, devendo conter:

a. Norma adotada;

b. Tipo de sistema fixo;

c. Agente extintor empregado;

d. Forma de acionamento (manual ou automático, indicar em planta a localização do ponto de acionamento alternativo do sistema).

5.1.2.5.4 Autorização do para Produtos Controlados

a. Documento de autoridade competente que autoriza a atividade de produção, comercialização e/ou armazenamento de explosivos, com especificação da quantidade máxima.

5.1.2.5.5 Documentos referentes ao comércio de fogos de artifício

a. Inventário de estoque para fogos de artifício conforme IT/CBMRN 30 – Fogos de artifício;

b. Documento expedido pela Prefeitura Municipal, certificando que pode haver o comércio do grupo L no local desejado;

c. Detalhes construtivos previstos na IT/CBMRN 30 a serem inseridos no Memorial descritivo de construção (Anexo A);

5.1.2.5.6 Memorial de dimensionamento da carga de incêndio

Memorial descritivo da carga de incêndio dos materiais existentes na edificação e áreas de risco contendo o dimensionamento conforme IT/CBMRN 14 – Carga de incêndio nas edificações e áreas de risco. No desenvolvimento dos cálculos, quando utilizados, os materiais devem ser individualizados em unidades, relacionando-os com suas respectivas massas (kg), sendo que o resultado final deve ser dado em unidades absolutas (ex.: 200 prateleiras com 30 pallets em cada uma e com 20 caixas em cada pallets).

5.1.2.5.7 Documento comprobatório de edificação construída

Documento que comprova a área construída, a ocupação e a data da edificação e áreas de risco existentes.

5.1.2.5.8 Memorial de cálculo de dimensionamento de lotação e saídas de emergência em centros esportivos e de exibição

Memorial descritivo dos cálculos realizados para dimensionamento de lotação e saídas de emergência em recintos desportivos e de espetáculo artístico cultural, conforme IT/CBMRN 12 – Centros esportivos e de exibição – Requisitos de segurança contra incêndio.

5.1.2.5.9 Memorial de cálculo de dimensionamento de lotação e saídas de emergência

Cálculos realizados para dimensionamento de lotação e saídas de emergência em locais de reunião de público, conforme IT/CBMRN 11 – Saídas de emergência, que podem ser transcritos em planta.

5.1.2.5.10 Planilha de informações operacionais

Planilha que contém um conjunto de dados sobre a edificação, sua ocupação e detalhes úteis para a qualidade do atendimento operacional do Corpo de Bombeiros, conforme a IT/CBMRN 16 – Plano de emergência contra incêndio.

5.1.2.5.11 Licença de funcionamento para instalações radioativas, nucleares, ou de radiografia industrial, ou qualquer instalação que trabalhe com fontes radioativas

Documento emitido pela Comissão Nacional de Energia Nuclear (CNEN), autorizando o funcionamento da edificação e áreas de risco.

5.1.2.5.12 Memorial descritivo de construção

Documento com a descrição das características estruturais da edificação e áreas de risco.

5.1.2.5.13 Memorial de dimensionamento e descritivo da lógica de funcionamento do sistema de controle de fumaça

Memorial demonstrativo dos parâmetros técnicos adotados para dimensionamento do sistema de controle de fumaça e a descrição lógica do funcionamento.

5.1.2.5.14 Memorial de cálculo de pressurização de escada

Memorial descritivo dos cálculos realizados para o dimensionamento da pressurização da escada de segurança.

5.1.2.5.15 Memorial de cálculo de isolamento de risco

Memorial descritivo dos cálculos realizados para o dimensionamento do isolamento de risco entre edificações e áreas de risco.

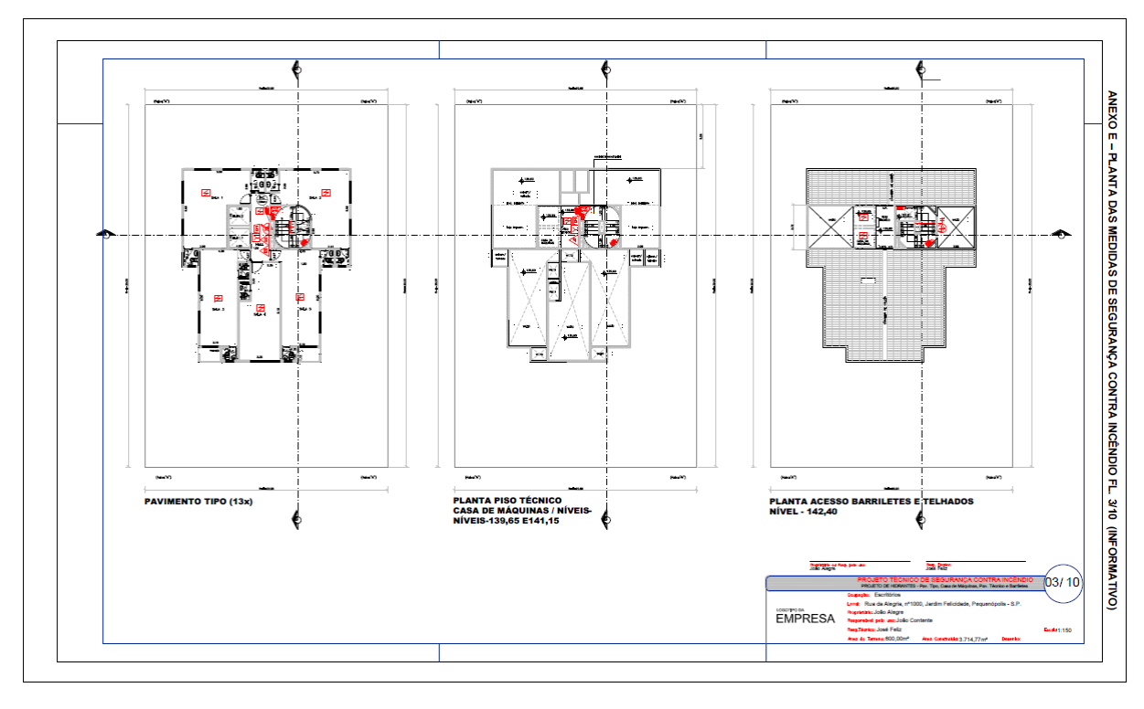
5.1.2.6 Planta das medidas de segurança contra incêndio

Representação gráfica da edificação e áreas de risco, conforme Anexo F, indicando a localização das medidas de segurança contra incêndio, bem como os riscos existentes, conforme descrito no item 5.1.3.

5.1.3 Apresentação da planta das medidas de segurança contra incêndio

5.1.3.1 Deve ser apresentada da seguinte forma:

a. Além da planta impressa que compõe o processo, deve-se apresentar uma mídia, devidamente identificada, com os arquivos eletrônicos das plantas com a extensão em PDF ou CAD/CAM;

b. Ser elaborada no formato A4 (210 mm x 297 mm), A3 (297 mm x 420 mm), A2 (420 mm x 594 mm) ou A1 (594 mm x 840 mm);

c. As escalas adotadas devem ser as estabelecidas em normas oficiais;

d. Adotar escala que permita a visualização das medidas de segurança contra incêndio;

e. Quando a planta de uma área construída ou área de risco não couber integralmente em escala reduzida em condições de legibilidade na folha A1, esta pode ser fracionada, contudo, deve adotar numeração que indique onde está localizada tal área na implantação;

f. Adotar os símbolos gráficos conforme IT/CBMRN 04;

g. Seguir a forma de apresentação gráfica conforme padrão adotado por normas oficiais;

h. O quadro de áreas da edificação e áreas de risco deve ser colocado na primeira folha;

i. A apresentação da planta de fachada pode ser necessária, porém, os detalhes de proteção estrutural, compartimentação vertical e escadas devem ser apresentados em planta de corte;

j. O Projeto Técnico deverá ser legível, evitando o excesso de elementos gráficos de instalações ou de arquitetura;

k. A apresentação de Projeto Técnico preliminar com a representação do sistema de chuveiros automáticos deve ser feita em planta separada, porém, em ordem numérica sequencial do Projeto Técnico.

l. Deve possuir numeração das páginas (01/XX, 02/XX... XX/XX), conforme NBR 6492/1994;

m. As plantas das medidas de segurança contra incêndio devem ser apresentadas com as medidas de segurança contra incêndio na cor vermelha, distinguindo-as dos demais detalhes da planta. Outros itens da planta na cor vermelha podem ser incluídos desde que sua representação tenha vínculo com as medidas de segurança contra incêndio apresentadas no Projeto Técnico.

5.1.3.2 Conteúdo da planta das medidas de segurança contra incêndio.

5.1.3.2.1 Informações básicas que devem constar nas plantas:

a. Símbolos gráficos, conforme IT/CBMRN 04, com a localização das medidas de segurança contra incêndio em planta baixa;

b. Legenda de todas as medidas de segurança contra incêndio utilizadas no Projeto Técnico. A apresentação dos demais símbolos não utilizados no Projeto Técnico é opcional;

c. Nota em planta com a indicação dos equipamentos móveis ou fixos ou sistemas de segurança instalados que possuírem a mesma capacidade ou dimensão;

d. Áreas construídas e áreas de risco com suas características, tais como:

1) tanques de combustível (produto e capacidade);

2) casa de caldeiras ou vasos sob pressão;

3) dutos e aberturas que possibilitem a propagação de calor;

4) cabinas de pintura;

5) locais de armazenamento de recipientes contendo gases inflamáveis (capacidade do recipiente e quantidade armazenada);

6) áreas com risco de explosão;

7) centrais prediais de gases inflamáveis;

8) depósitos de metais pirofóricos;

9) depósito de produtos perigosos;

10) outros riscos que necessitem de segurança contra incêndio.

e. O esquema isométrico da tubulação deve será apresentado de acordo com o item 5.1.3.2.2 (detalhes específicos que devem constar em planta);

f. Quadro de situação da edificação e áreas de risco, sem escala, indicando os logradouros que delimitam a quadra;

g. Quadro resumo das medidas de segurança contra incêndio indicando as normas e/ou legislações aplicadas nas respectivas medidas de segurança constantes do Projeto Técnico conforme Anexo G;

h. Cotas dos desníveis em uma planta baixa, quando houver;

i. Medidas de proteção passiva contra incêndio nas plantas de corte, tais como: dutos de ventilação da escada, distância verga peitoril, escadas, antecâmaras, detalhes de estruturas e outros quando houver a exigência específica destes detalhes construtivos;

j. Localização e independência do sistema elétrico em relação à chave geral de energia da edificação e áreas de risco sempre que a medida de segurança contra incêndio tiver seu funcionamento baseado em motores elétricos;

k. Miniatura da implantação com hachuramento da área sempre que houver planta fracionada em mais de uma folha, conforme planta chave;

l. Destaque no desenho das áreas frias não computáveis (banheiros, vestiários, escadas enclausuradas, dentre outros) especificadas em um quadro de áreas próprio, quando houver solicitação de isenção de medidas de segurança contra incêndio;

m. Implantação, principalmente quando houver mais de uma edificação e áreas de risco, dentro do mesmo lote, ou conjunto de edificações, instalações e áreas de risco, juntamente com plantas de cobertura e situação.

Nota:

Os detalhes genéricos constantes do Projeto Técnico devem ser apresentados, preferencialmente, na última folha ou, nos casos em que tais detalhes não caibam nesta, devem constar nas próximas folhas, tais como:

a) Legenda;

b) Isométrico;

c) Quadro resumo das medidas de segurança;

d) Quadro de localização da edificação e áreas de risco;

e) Quadro de áreas;

f) Detalhes de corrimãos e guarda-corpos;

g) Detalhes de degraus;

h) Detalhe da ventilação efetiva da escada de segurança;

i) Detalhe do registro de recalque;

j) Nota sobre o sistema de sinalização adotado;

k) Detalhe da sucção da bomba de incêndio;

l) Especificação dos chuveiros automáticos;

m) Quadro do sistema de gases e líquidos inflamáveis e combustíveis e outros.

n) Detalhes de extintores;

o) Detalhes de bombas com by-pass, quando existir;

p) Detalhe de detectores, acionadores e central de alarme;

q) Detalhe da central de GLP/GN, do envelopamento ou embutimento das tubulações onde se fizer necessário, bem como suas notas técnicas;

r) Detalhe dos chuveiros automáticos e seus distanciamentos de estruturas e coberturas;

s) Detalhes abrigos de mangueiras.

5.1.3.2.2 Detalhes específicos que devem constar na planta de acordo com a medida de segurança projetada para a edificação e áreas de risco, constante nas respectivas Instruções Técnicas:

a. Acesso de viatura na edificação e áreas de risco (IT/CBMRN 06)

1) Largura da via de acesso;

2) Indicação se a via de acesso é mão única ou mão dupla;

3) Indicação do peso suportado pelo pavimento da via de acesso em Kgf;

4) Largura e altura do portão de entrada da via de acesso.

b. Separação entre edificações (IT/CBMRN 07)

Para as edificações objetos de cálculo deve-se:

1) indicar a distância de outras edificações;

2) indicar a ocupação;

3) indicar a carga de incêndio;

4) indicar as aberturas nas fachadas e suas respectivas dimensões;

5) indicar a fachada da edificação considerada para o cálculo de isolamento de risco e suas respectivas dimensões;

6) Parede corta-fogo para isolamento de risco;

7) Juntar o memorial de cálculo de isolamento de risco.

c. Segurança estrutural nas edificações (IT/CBMRN 08)

1) Constar o Tempo Requerido de Resistência ao Fogo (TRRF) das estruturas em nota ou legenda e no memorial de construção, independente do tipo de estrutura;

2) Identificar os tipos de estruturas;

3) Identificar em planta as áreas das estruturas protegidas com material resistente ao fogo e, se for o caso, os locais isentos de revestimento, conforme Anexo A da IT/CBMRN 08.

d. Compartimentação horizontal e compartimentação vertical (IT/CBMRN 09)

1) Áreas compartimentadas e o respectivo quadro de áreas;

2) Aba horizontal;

3) Aba vertical;

4) Afastamento de aberturas perpendiculares à parede corta-fogo para compartimentação;

5) Tempo de resistência ao fogo dos elementos estruturais utilizados;

6) Elementos corta-fogo:

7) Parede corta-fogo para compartimentação;

8) Vedador corta-fogo;

9) Selo corta-fogo;

10) Porta corta-fogo;

11) Cortina corta-fogo;

12) Cortina d’água;

13) Vidro corta-fogo;

14) Vidro para-chama.

e. Controle de materiais de acabamento e de revestimento (IT/CBMRN 10)

1) Indicar nos respectivos cortes ou em notas específicas, as classes dos materiais de piso, parede, divisória, teto e forro, correspondentes a cada ambiente.

f. Saídas de emergências (IT/CBMRN 11)

1) Detalhes de degraus;

2) Detalhes de corrimãos;

3) Detalhes de guarda-corpos;

4)Detalhes e largura das escadas;

5) Detalhes de rampas;

6) Detalhe da ventilação efetiva da escada de segurança (quando houver);

7) Largura e sentido de abertura das portas das saídas de emergência;

8) Indicar barra antipânico (quando houver);

9) Casa de máquinas do elevador de emergência (quando houver exigência);

10) Antecâmaras de segurança (quando houver exigência);

11) Indicar a lotação do ambiente quando se tratar de local de reunião de público, individualizando a lotação por ambiente ou utilizando a tabela 1 do Anexo A da IT 11;

12) Dimensionamento das saídas de emergência, em função da população máxima no recinto e/ou setor.

13) Medida do patamar.

g. Centros esportivos e de exibição – Requisitos de segurança contra incêndio (IT/CBMRN 12)

1) Larguras das escadas, acessos e portas das saídas de emergência;

2) Larguras das portas das entradas dos recintos;

3) Barra antipânico onde houver;

4) Corrimãos em escadas e rampas, inclusive os corrimãos centrais;

5) Dimensões da base e espelho dos degraus;

6) Porcentagem de inclinação das rampas;

7) As lotações dos ambientes;

8) Delimitação física da área de público em pé;

9) Dimensões dos camarotes (quando houver);

10)Dimensões das cadeiras fixas (dobráveis ou não) e o espaçamento entre as mesmas;

11) Indicar o revestimento do piso;

12) Indicar os equipamentos de som;

13) Localização do grupo motogerador;

14) Localização dos blocos autônomos;

15) Indicar a sinalização de piso;

16) Constar nota no quadro de informações sobre os sistemas de como será o controle de acesso do público;

17) Postos de atendimento pré-hospitalar.

h. Pressurização de escada de segurança (IT/CBMRN 13)

1) Sala do grupo motoventilador;

2) Localização do ponto de captação de ar;

3) Detectores de acionamento do sistema;

4) Localização da central de detecção de incêndio;

5) Localização da fonte alternativa de energia do sistema;

6) Grelhas de insuflamento;

7) Caminhamento dos dutos;

8) Localização do grupo motogerador;

9) Janela de sobre pressão;

10) Apresentação esquemática do sistema em corte;

11) Acionadores manuais dos motoventiladores localizados na sala do grupo motoventilador e no local de supervisão predial com permanência humana constante;

12) Elementos de compartimentação de risco (parede e porta corta-fogo) da sala do grupo motoventilador;

13) Antecâmara de segurança e indicação da porta estanque quando a sala do grupo motoventilador estiver localizada em pavimento que possa causar risco de captação de fumaça de um incêndio;

14) Juntar o memorial de cálculo de vazão do sistema de pressurização da escada;

15) Juntar o memorial de cálculo de vazão do sistema de pressurização do elevador de emergência (quando houver exigência).

i. Carga de incêndio nas edificações e áreas de risco (IT/CBMRN 14)

1) Indicar a carga de incêndio específica para as ocupações não listadas na IT/CBMRN 14;

2) Juntar o memorial de carga de incêndio (quando necessário).

j. Controle de fumaça (IT/CBMRN 15)

1) Entrada de ar (aberturas, grelhas, venezianas e insuflação mecânica);

2) Exaustores naturais (entradas, aberturas, grelhas, venezianas, claraboias e alçapões);

3) Exaustores mecânicos;

4) Dutos e peças especiais;

5) Registro corta-fogo e fumaça;

6) Localização dos pontos de acionamento alternativo do sistema;

7) Localização dos detectores de incêndio;

8) Localização da central de alarme/detecção de incêndio;

9) Localização da casa de máquinas dos insufladores e exaustores;

10) Localização da fonte de alimentação, quadros e comandos;

11) Juntar o memorial de dimensionamento e descritivo da lógica de funcionamento do sistema de controle de fumaça.

k. Iluminação de emergência (IT/CBMRN 18)

1) Os pontos de iluminação de emergência;

2) Quando o sistema de iluminação de emergência for alimentado por grupo motogerador (GMG) que não abranja todas as luminárias da edificação e áreas de risco, devem ser indicadas as luminárias a serem acionadas em caso de emergência;

3) O posicionamento da central do sistema;

4) Fonte alternativa de energia do sistema;

5) Quando o sistema for abrangido por GMG, devem constar em Projeto Técnico a abrangência, autonomia e sistema de automatização;

6) Duto de entrada de ar, Parede Corta-Fogo e Porta Corta-Fogo da sala do GMG quando o mesmo estiver localizado em área com risco de captação de fumaça ou gases quentes provenientes de um incêndio;

7) Detalhe ou nota em planta da proteção dos dutos quando passarem por área de risco.

l. Sistema de detecção e alarme de incêndio (IT/CBMRN 19)

1) Localização pontual dos detectores;

2) Os acionadores manuais de alarme de incêndio;

3) Os sinalizadores sonoros e visuais;

4) Central do sistema;

5) Painel repetidor (quando houver);

6) Fonte alternativa de energia do sistema.

m. Sistema de sinalização de emergência (IT/CBMRN 20)

Deve ser lançada uma nota referenciando o atendimento do sistema de sinalização de emergência de acordo com a IT/CBMRN 20.

n. Sistema de proteção por extintores de incêndio (IT/CBMRN 21)

1) Indicar as unidades extintoras;

2) Quando forem usadas unidades extintoras com capacidades diferentes de um mesmo agente, deve ser indicada a capacidade ao lado de cada símbolo;

3) Distância máxima a percorrer.

o. Sistema de hidrantes e de mangotinhos para combate a incêndio (IT/CBMRN 22)

1) Indicar os hidrantes ou mangotinhos;

2) Indicar as botoeiras de acionamento da bomba de incêndio;

3) Indicar o dispositivo responsável pelo acionamento no barrilete, quando o sistema de acionamento for automatizado, bem como, a localização do acionador manual alternativo da bomba de incêndio em local de supervisão predial, e com permanência humana constante;

4) Indicar o registro de recalque, bem como o detalhe que mostre suas condições de instalação;

5) Quando houver mais de um sistema de hidrantes instalado, deve ser indicado no registro de recalque, a qual edificação ele pertence;

6) Indicar o reservatório de incêndio e sua capacidade;

7) Indicar a bomba de incêndio principal e jockey (quando houver) com indicação de pressão, vazão e potência;

8) Quando forem usadas mangueiras de incêndio e esguichos com comprimentos e requintes diferentes, devem ser indicadas as respectivas medidas ao lado do símbolo do hidrante;

9) Deve constar a perspectiva isométrica completa (sem escala e com cotas);

10) Deve constar o detalhe da sucção quando o reservatório for subterrâneo ou ao nível do solo;

11) Quando o sistema de abastecimento de água for através de fonte natural (lago, lagoa, açude etc.), indicar a sua localização;

12) Juntar o memorial de cálculo do sistema de hidrantes.

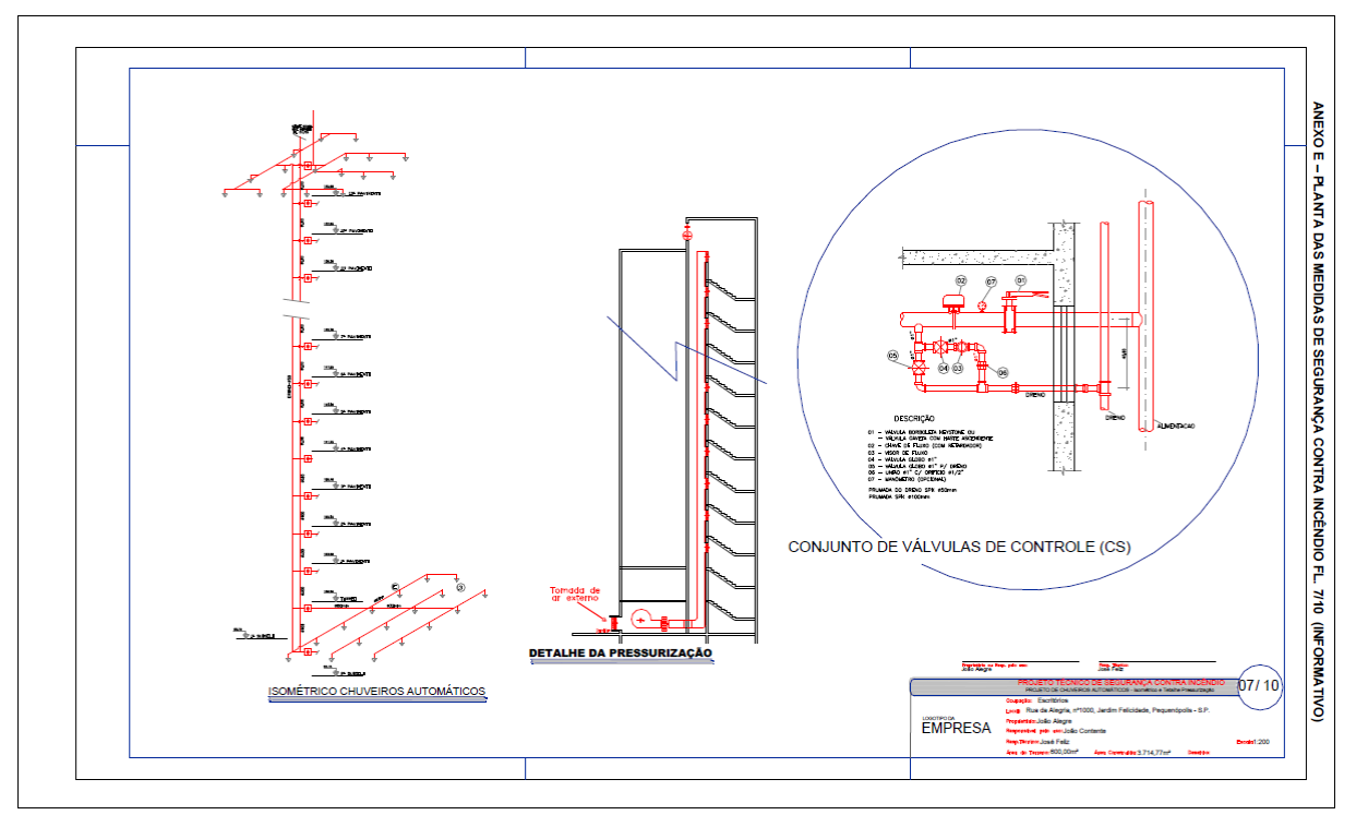
p. Sistema de chuveiros automáticos (IT/CBMRN 23 e 24) – ver também item 5.5.12

1) Localização das bombas do sistema com indicação da pressão, vazão e potência;

2) A área de aplicação dos chuveiros hachurada para os respectivos riscos;

3) Os tipos de chuveiros especificados;

4) Localização dos cabeçotes de testes;

5) Área de cobertura e localização das válvulas de governo e alarme (VGA) e dos comandos secundários (CS);

6) Localização do painel de alarme;

7) Locais onde foram substituídos os chuveiros por detectores de incêndio;

8) Esquema isométrico somente da tubulação envolvida no cálculo;

9) Toda a tubulação abrangida pelo cálculo deve ter seu diâmetro e comprimento cotado no esquema isométrico;

10) Devem ser apresentadas todas as tubulações de distribuição com respectivos diâmetros e cotas de distância;

11) Devem ser indicados os pontos de chuveiros automáticos em toda a edificação e áreas de risco;

12) Para edificações C-3, exceto quando se tratar da área de operação, não será necessária a apresentação dos pontos de chuveiros automáticos nas lojas com área inferior a 300 m², neste caso, deve-se indicar a área protegida através de simbologia específica;

13) Localização do registro de recalque;

14) Quando o sistema de abastecimento de água for através de fonte natural (lago, lagoa, açude etc.), indicar a sua localização;

15) Indicar o dispositivo responsável pelo acionamento do sistema no barrilete, bem como a localização do acionador manual alternativo da bomba de incêndio em local de supervisão predial com permanência humana constante;

16) Indicar a capacidade e localização do reservatório de incêndio;

17) Juntar o memorial de cálculo do sistema de chuveiros automáticos;

18) Altura de armazenamento de mercadoria;

19) Classe da mercadoria armazenada.

q. Segurança contra incêndio para líquidos combustíveis e inflamáveis (IT/CBMRN 25 e RT 03 - DAT/CBMRN)

1) Indicar todos os tanques e instalações;

2) Indicar o tipo de tanque (elevado, subterrâneo, vertical ou horizontal);

3) Indicar o tipo de superfície do tanque (teto flutuante ou fixo);

4) Indicar através de cotas os afastamentos entre tanques, edificações, vias públicas, limites de propriedades e dimensões das bacias de contenção;

5) Indicar a capacidade de armazenamento de cada tanque;

6) Indicar o produto inflamável ou combustível, e ponto de fulgor;

7) Indicar para cada cenário, qual tanque é considerado o de maior risco para efeito de cálculo;

8) Indicar os tanques considerados vizinhos ao tanque de maior risco;

9) Indicar os equipamentos de proteção contra incêndio (bombas de incêndio, esguichos reguláveis e lançadores de espuma, proporcionadores, canhões monitores, aspersores, câmaras de espuma, registro de recalque, entre outros);

10) Apresentar quadro que contenha a indicação do tanque, o produto armazenado, volume, ponto de fulgor, diâmetro e altura do tanque;

11) Indicar a localização e volume do líquido gerador de espuma (LGE);

12) Constar o esquema isométrico, podendo ser apenas da tubulação envolvida no cálculo;

13) Indicar as especificações dos equipamentos envolvidos no cálculo;

14) Juntar o memorial de cálculo do sistema de espuma e resfriamento.

r. Sistema fixo de gases para combate a incêndio (IT/CBMRN 26)

1) Indicar a botoeira alternativa para acionamento do sistema fixo;

2) Indicar a botoeira de desativação do sistema de gases;

3) Indicar a central do sistema de detecção e alarme de incêndio;

4) Indicar os detectores de incêndio;

5) Indicar a bateria de cilindros de gases;

6) Indicar as áreas protegidas pelo sistema fixo de gases;

7) Indicar o tempo de retardo para evacuação do local;

8) Deve constar o esquema isométrico somente da tubulação envolvida no cálculo;

9) Juntar o memorial de cálculo do sistema de gases limpos e CO2;

10)Apresentar especificações do agente utilizado, como NOAEL, LOAEL, concentração de projeto adotada, volume total protegido, pressão nos cilindros.

s. Armazenamento em silos (IT/CBMRN 27)

1) Indicar o respiro da cobertura de cada silo;

2) Indicar a largura das escadas;

3) Constar nota no quadro de informações sobre os sistemas de que os elevadores devem ser fechados em poços estanques com paredes resistentes ao fogo por 2 horas; que as luminárias, inclusive as de emergência, da área de risco são à prova de explosão e de pó; que os transportadores verticais e horizontais são dotados de sensores automáticos de movimento, que desligam automaticamente os motores ao ser detectado o escorregamento da correia ou corrente;

4) Indicar nas escadas e elevadores as Portas Corta Fogo (PCF) do tipo P-90, com fecho automático em todas as aberturas;

5) Indicar o sensor de temperatura localizado entre os dispositivos de produção de calor e o secador;

6) Indicar o dispositivo corta-fogo provido de alívio de explosão, no duto de conexão entre os silos e o dispositivo de coleta de poeira;

7) Indicar na cobertura a vedação contra pós e contra água;

8) Indicar o sistema de detecção e de extinção de faíscas nos dutos de transporte de poeira;

9) Constar em todos os locais confinados ventiladores à prova de explosão, com acionamento manual ou automático;

10) Indicar os dispositivos de alívio de explosão nos equipamentos (dutos, silos de pó, coletores, etc.), edificações e estruturas onde exista o risco de explosão de pó.

t. Manipulação, armazenamento, comercialização e utilização de Gás Liquefeito de Petróleo – GLP (IT/CBMRN 28)

1) Localização da central de GLP;

2) Indicar a capacidade dos cilindros, bem como da capacidade total da central;

3) Afastamentos das divisas de terrenos, áreas edificadas no mesmo lote e locais de risco;

4) Local de estacionamento do veículo abastecedor, quando o abastecimento for a granel;

5) Sistema de proteção da central;

6) Localização do botijão e das aberturas previstas para ventilação (caso de área interna em unidade habitacional quando permitido pela IT/CBMRN 28) e forma de instalação;

7) Indicar os equipamentos de proteção contra incêndio (bombas de incêndio, esguichos reguláveis, canhões monitores, aspersores, registro de recalque, entre outros), se houver exigência de sistema de resfriamento;

8) Constar o esquema isométrico, podendo ser apenas da tubulação envolvida no cálculo, se houver exigência de sistema de resfriamento;

9) Juntar o memorial de cálculo do sistema de resfriamento, se houver exigência de sistema de resfriamento.

10) Indicar se os trechos da tubulação de gás são aparentes, embutidos ou envelopados.

11) Indicar trajeto da tubulação da central de gás até os pontos de utilização.

12) Apresentar ART de projeto da rede e tubulações de gases e vapores.

u. Comercialização, distribuição e utilização de Gás Natural (IT/CBMRN 29)

1) Indicar os compressores, estocagem e unidades de abastecimento de gás;

2) Indicar as distâncias mínimas de afastamentos previstos na tabela I da NBR 12236/94, para postos que comercializem gás combustível comprimido;

3) Indicar o local de estacionamento do veículo abastecedor quando o gás natural for distribuído por este meio de transporte.

4) Indicar se os trechos da tubulação de gás são aparentes, embutidos ou envelopados.

5) Indicar trajeto da tubulação da central de gás até os pontos de utilização.

6) Apresentar ART de projeto da rede e tubulações de gases e vapores.

v. Fogos de artifício (IT/CBMRN 30)

1) Deve ser lançada uma nota referenciando o atendimento às distâncias de separação do comércio à via pública, edifícios habitados e confrontantes de acordo com a IT/CBMRN 30;

2) Quantidades de fogos armazenados e suas classificações.

w. Segurança contra incêndio para heliponto e heliporto (IT/CBMRN 31)

1) Sinalização do heliponto conforme previsto na respectiva IT/CBMRN;

2) Indicar a capacidade de carga do heliponto.

x. Produtos perigosos em edificações e áreas de risco (IT/CBMRN 32)

1) Indicar e detalhar o centro de monitoramento ou a guarita;

2) Indicar e detalhar a quantidade e o local de armazenamento ou manipulação.

3) Capacitar os operadores conforme programa do curso de Movimentação de Produtos Perigosos – MOPP e conforme a IT/CBMRN 17/18 – Brigada de incêndio.

4) As informações sobre os riscos e os procedimentos emergenciais devem fazer parte do Plano de emergência para produtos perigos, elaborado de acordo com a IT/CBMRN 16 – Plano de emergência contra incêndio, no que couber.

y. Cobertura de sapé, piaçava e similares (IT/CBMRN 33)

1) Especificar qual o tipo de cobertura utilizada;

2) Afastamentos dos limites do terreno e de postos de abastecimento de combustíveis, gases inflamáveis, fogos de artifício ou seus depósitos;

3) Localização de fogões, coifas e similares;

4) Localização da central de GLP (quando houver).

5) Indicar onde a instalação elétrica é embutida ou em eletrodutos metálicos.

6) Detalhar o cálculo da população e as saídas de emergências.

z. Hidrante urbano (IT/CBMRN 34)

1) posicionamento dos hidrantes;

2) o raio de ação do hidrante;

3) a vazão dos hidrantes;

4) o traçado da rede de água que abastece os hidrantes com indicação de seus diâmetros.

a.a. Túnel rodoviário (IT/CBMRN 35)

1) Indicar a interligação dos túneis paralelos (quando for o caso);

2) Indicar o sistema de controle de fumaça;

3) Indicar as defensas das laterais do túnel;

4) Indicar os detalhes dos corrimãos;

5) Indicar as áreas de refúgio (quando houver);

6) Indicar os acessos, as rotas de fuga e as saídas de emergência;

7)Indicar as medidas de segurança contra incêndio adotadas;

8) Indicar o sistema de drenagem de líquidos e bacias de contenção;

9) Indicar o sistema de comunicação interna;

10) Indicar o sistema de circuito interno de televisão;

11) Indicar o painel informativo.

a.b. Pátio de contêiner (IT/CBMRN 36)

1) Indicar as áreas de segregação de cargas e respectivas proteções;

2) Indicar as medidas de segurança contra incêndio adotadas;

3) Confeccionar o plano de emergência, acompanhado da planta de risco, a ser elaborada conforme Regulamento de Segurança contra Incêndio das edificações e áreas de risco do Estado do Rio Grande do Norte.

a.c. Subestação elétrica (IT/CBMRN 37)

1) Indicar as áreas destinadas aos reatores, transformadores e reguladores de tensão;

2) Indicar as vias de acesso a veículos de emergência;

3) Indicar as paredes corta-fogo de isolamento de risco utilizadas no local;

4) Indicar a bacia de contenção com drenagem do óleo isolante e a caixa separadora de óleo e água;

5) Detalhamento do sistema de água nebulizada para os casos de subestação compartilhada;

6) Indicar os requisitos básicos para as edificações;

7) Indicar a Casa de controle;

8) Indicar a Casa de compensadores síncronos;

9) Indicar as medidas de segurança contra incêndio adotadas;

10) Indicar as exigências mínimas para cada tipo de subestação elétrica;

11)Indicar as exigências mínimas para as edificações ligadas às subestações elétricas.

a.d. Segurança contra incêndio em cozinha profissional (IT/CBMRN 38)

1) Indicar o caminhamento dos dutos de exaustão;

2) Indicar o sistema fixo de extinção a ser instalado, quando for o caso.

a.e. Inspeção em instalações elétricas de baixa tensão (IT/CBMRN 41)

1) Deve constar no quadro resumo das medidas de segurança, nota esclarecendo o atendimento da IT/CBMRN 41 – Inspeção visual em instalações elétricas de baixa tensão.

2) Localização da edificação com relação a redes elétricas de alta tensão, devendo obedecer aos afastamentos mínimos de segurança.

5.1.4 Apresentação do Projeto Técnico para avaliação junto ao CBMRN

5.1.4.1 O Projeto Técnico deve ser apresentado e protocolado, em no mínimo duas vias.

5.1.4.2 O interessado deve comparecer ao CBMRN com o comprovante original do pagamento das taxas referentes ao serviço de análise da área indicada no Projeto Técnico.

5.1.4.3 O pagamento das taxas realizado através de compensação bancária que apresentar irregularidades de quitação junto à Diretoria de Atividades Técnicas deve ter seu processo de análise interrompido.

5.1.4.4 O processo de análise deve ser reiniciado quando a irregularidade for sanada.

5.1.4.5 Desconformidades que não interfiram substancialmente nas medidas de proteção existentes no projeto e de fácil execução poderão ser prescritas no Auto de Análise Técnica, para que sejam executadas até a próxima fiscalização ou prazo previsto, onde tais não conformidades prescritas deverão estar sanadas.

5.1.5 Prazos de análise

5.1.5.1 A Diretoria de Atividades Técnicas tem o prazo máximo de até 30 (trinta) dias prorrogáveis, justificadamente, por igual período, a contar da juntada do comprovante de pagamento das respectivas taxas.

5.1.5.2 O Projeto Técnico deve ser analisado conforme ordem cronológica de entrada.

5.1.5.3 A ordem do item anterior pode ser alterada para o atendimento das ocupações ou atividades temporárias ou interesse da administração pública, conforme cada caso.

5.1.6 Cassação

5.1.6.1 A qualquer tempo o CBMRN pode anular o Projeto Técnico que não tenha atendido todas as exigências da legislação vigente à época da aprovação.

5.1.6.2 O Projeto Técnico anulado deve ser substituído por um novo, podendo ser baseado na legislação vigente à época da elaboração do Projeto Técnico anulado.

5.1.6.3 Constatada a inabilitação técnica do responsável técnico que atuou no Projeto Técnico para o ato praticado, ao tempo da aprovação, deve ser procedida a anulação do Projeto Técnico.

5.1.6.4 O ato de anulação de Projeto Técnico deve ser publicado no Diário Oficial do Estado (DOE).

5.1.6.5 O ato de anulação deve ser comunicado ao proprietário/responsável pelo uso, responsável técnico, Prefeitura Municipal e, na hipótese do item 5.1.6.3, aos conselhos profissionais competentes.

5.1.6.6 Havendo indício de crime, o responsável pela Diretoria de Atividades Técnicas deve comunicar o fato ao Ministério Público Estadual (MPE).

5.1.7 Substituição ou atualização do Projeto Técnico

5.1.7.1 Substituição do Projeto Técnico

5.1.7.1.1 A edificação e áreas de risco que se enquadrar dentro de uma das condições abaixo relacionadas devem ter o seu Projeto Técnico substituído:

5.1.7.1.1.1 Ampliação de área construída que implique o redimensionamento dos elementos das saídas de emergência, tipo e quantidade de escadas, acessos, portas, rampas, lotação;

5.1.7.1.1.2 Ampliação de área construída que implique o redimensionamento do sistema hidráulico de segurança contra incêndio existente, pressão, vazão, potência da bomba de incêndio e reserva de incêndio;

5.1.7.1.1.3 Ampliação de área que implique a adoção de nova medida de segurança contra incêndio (medida não prevista anteriormente);

5.1.7.1.1.4 A mudança de ocupação da edificação e áreas de risco com ou sem agravamento de risco que implique a ampliação das medidas de segurança contra incêndio existentes e/ou exigência de nova medida de segurança contra incêndio;

5.1.7.1.1.5 A mudança de leiaute da edificação e áreas de risco que implique a adoção de nova medida de segurança ou torne ineficaz a medida de segurança prevista no Projeto Técnico existente;

5.1.7.1.1.6 O aumento da altura da edificação e áreas de risco que implique a adoção de nova medida de segurança contra incêndio e/ou redimensionamento do sistema hidráulico de segurança contra incêndio existente e/ou rotas de fuga;

5.1.7.1.1.7 Sempre que, em decorrência de várias ampliações ou diversas alterações, houver acúmulo de plantas e documentos que dificultem a compreensão e o manuseio do Projeto Técnico, será solicitada a substituição por parte da Diretoria de Atividades Técnicas.

5.1.7.1.2 Composição

A solicitação de substituições do projeto técnico deve ser realizada através de apresentação dos seguintes documentos:

a. Projeto Técnico atual aprovado;

b. Planta das medidas de segurança contra incêndio, conforme Anexo E, do novo projeto;

c. Especificação detalhada das alterações realizadas no projeto;

d. Memorial Descritivo (Anexo A) e documentos complementares, conforme item 5.1.2.5, caso sejam necessários.

5.1.7.2 Atualização do Projeto Técnico

5.1.7.2.1 É a complementação de informações ou alterações técnicas relativas ao Projeto Técnico aprovado, via Formulário para Atendimento Técnico, para alterações simples conforme item 7 desta IT, ou através da reapresentação do projeto técnico para reanálise.

5.1.7.2.2 Quando se tratar de área ampliada que represente riscos isolados em relação à edificação existente, desde que possua as mesmas medidas de segurança contra incêndio, deve, a área ampliada, atender a legislação atual, e ser regularizada através da apresentação de plantas.

5.2 Processo Técnico Simplificado (PTS)

5.2.1 Procedimento usado para regularização de edificações de baixo e médio risco, enquadradas como Processo Técnico Simplificado (PTS),

visando a celeridade no licenciamento das microempresas, empresas de pequeno porte e microempreendedores individuais, nos termos da Lei Complementar nº 601 de 07 de agosto de 2017 – Código Estadual de Segurança Contra Incêndio e Pânico (CESIP) do Estado do Rio Grande do Norte, com suas alterações.

5.2.2 Os procedimentos relacionados ao Processo Técnico Simplificado são regulados por meio da IT/CBMRN 42 – Processo Técnico Simplificado, aplicando-se subsidiariamente os procedimentos desta IT/CBMRN.

5.2.3 Composição

O Processo Técnico Simplificado deve ser composto pelos seguintes documentos:

a. Questionário (Formulário de Classificação de Risco);

b. Formulário de Avaliação de Risco (FAR);

c. Documento de Responsabilidade Técnica;

d. Comprovante de pagamentos de taxas correspondentes à Diretoria de Atividades Técnicas;

5.3 Projeto para eventos temporários

5.3.1 Procedimento usado para regularização de eventos de reunião de público com estruturas e áreas de risco provisórias (eventos temporários).

5.3.2 Os procedimentos relacionados ao projeto técnico para eventos temporários são regulados por meio da Resolução Técnica 01 - Eventos Temporários, aplicando-se subsidiariamente os procedimentos desta Instrução Técnica.

5.4 Formulário para Atendimento Técnico (FAT)

5.4.1 Procedimento usado para pequenos ajustes no Projeto Técnico, sendo regulados por meio do item 7 desta Instrução Técnica.

5.5 Disposições gerais para apresentação de Projeto Técnico

5.5.1 Cada medida de segurança contra incêndio deve ser dimensionada conforme o critério existente em uma única norma, vedando o uso de mais de um texto normativo para uma mesma medida de segurança contra incêndio.

5.5.2 É permitido o uso de norma estrangeira, mediante Câmara Técnica, quando o sistema de segurança estabelecido oferecer melhor nível de segurança.

5.5.3 Se o responsável técnico fizer uso de norma estrangeira, deve apresentá-la obrigatoriamente anexada ao Projeto Técnico no ato de sua entrega para análise.

5.5.4 A norma estrangeira deve ser apresentada sempre em seu texto total e traduzida para a língua portuguesa, por um tradutor juramentado.

5.5.5 A medida de segurança contra incêndio não exigida, ou dimensionada acima dos parâmetros normatizados, deve ser orientada por escrito, pelo analista, ao proprietário ou responsável pelo uso, quanto a não obrigatoriedade daquela medida ou parte dela.

5.5.6 Devem ser adotados todos os modelos de documentos exemplificados nas Instruções Técnicas para apresentação nos Projetos Técnicos, porém, é permitida a fotocópia e a reprodução por meios eletrônicos, dispensando símbolos e brasões neles contidos.

5.5.7 Todas as páginas dos documentos onde não haja campo para assinatura devem ser rubricadas pelo responsável técnico e, proprietário ou responsável pelo uso.

5.5.8 Quando for emitido relatório de não conformidades constatadas na análise do Projeto Técnico pela Diretoriade Atividades Técnicas, o interessado deve encaminhar resposta circunstanciada, por meio de carta resposta sobre os itens emitidos, esclarecendo as providências adotadas para que o Projeto Técnico possa ser reanalisado pela Diretoria de Atividades Técnicas até a sua aprovação.

5.5.9 Quando houver a discordância do interessado em relação aos itens emitidos pela Diretoria de Atividades Técnicas e esgotadas as argumentações técnicas na fase de análise, o interessado pode solicitar recurso em Câmara Técnica (Anexo J), conforme item 9.

5.5.10 Na hipótese de ampliação ou reforma em edificação ou área de risco já licenciada pelo CBMRN, o interessado deverá requerer uma nova avaliação do local ampliado ou reformado, mediante o pagamento das respectivas taxas.

5.5.11 Nos casos de extravio do protocolo de análise, o responsável técnico, proprietário ou responsável pelo uso deve encaminhar uma solicitação à Diretoria de Atividades Técnicas, esclarecendo o fato ocorrido.

5.5.12 Quanto aos detalhes específicos do sistema de chuveiros automáticos que devem constar na planta de acordo com o item 5.1.3.2.2 desta IT/CBMRN, nas substituições de projeto, com ampliação, cujos projetos anteriores tenham vistoria aprovada, na área existente aprovada deve ser apresentado o esquema isométrico com a área de cálculo e caminhamento da tubulação até a bomba, bem como o respectivo cálculo hidráulico.

6 PROCEDIMENTOS DE VISTORIA

6.1 Solicitação de vistoria

6.1.1 A vistoria de regularização da Diretoria de Atividades Técnicas do CBMRN na edificação e áreas de risco é realizada mediante solicitação do proprietário, responsável pelo uso, do procurador ou do responsável técnico com a apresentação dos documentos constantes do item 6.2.

6.1.1.1 Quando a edificação for um condomínio, o signatário deve ser o síndico ou o administrador profissional.

6.1.2 As pessoas relacionadas no item 6.1.1 podem protocolar a solicitação de vistoria da edificação e áreas de risco, desde que previamente cadastrada no sistema da Diretoria de Atividades Técnicas.

6.1.3 O interessado deve solicitar o pedido de vistoria indicando o número do último Projeto Técnico aprovado.

6.1.4 Caso o interessado não saiba informar o número do Projeto Técnico, pode ser solicitada a informação à Diretoria de Atividades Técnicas.

6.1.5 É facultativa a assinatura da ART pelo contratante (proprietário ou responsável pelo uso) e obrigatória pelo responsável técnico.

6.1.6 Podem ser apresentadas cópias dos documentos especificados nos itens 6.2.1.

6.1.7 Deve ser recolhida a taxa junto à instituição bancária autorizada, de acordo com a área construída especificada no Projeto Técnico a ser vistoriado.

6.1.8 Nos casos de ocupações temporárias conforme descrito no item 5.3, a taxa deve ser calculada de acordo com o especificado na Resolução Técnica 01 - DAT/CBMRN - Eventos Temporários.

6.1.9 O pagamento das taxas realizado através de compensação bancária que apresentar irregularidades de quitação junto à Diretoria de Atividades Técnicas deve ter seu processo de vistoria interrompido.

6.1.10 O processo de vistoria deve ser reiniciado quando a irregularidade for sanada.

6.1.11 Para a solicitação de vistoria de área parcial, deve ser encaminhada à Diretoria de Atividades Técnicas uma solicitação especificando a área a ser vistoriada.

6.1.12 O pagamento da taxa para área parcial é correspondente à área solicitada.

6.1.13 A vistoria parcial é permitida em edificações e áreas de risco nas seguintes situações:

I - Edificação integrante de um complexo, após projeto do agrupamento (lote, condomínio ou entre outros) ser aprovado integralmente, englobando edificações que atendam aos critérios de risco isolado conforme parâmetros da IT 07 e que possuam medidas de segurança contra incêndio e pânico instaladas independentes, não possuindo vínculo funcional ou produtivo, desde que haja condição de acesso das guarnições e viaturas do Corpo de Bombeiros.

Nota: Não são admitidas vistorias parciais entre as torres dos condomínios residenciais.

II - Edificações em que a área a ser vistoriada inclua o nível de descarga e os pavimentos consecutivos, e possua compartimentação em relação a áreas não utilizadas, conforme parâmetros da IT 09.

Nota: As áreas compartimentadas não podem ser utilizadas para nenhum fim, nem tão pouco armazenar qualquer material, devendo o sistema de hidrantes estar atendendendo a essas áreas.

III - Edificações térreas em obra, desde que a área parcial a ser vistoriada possua restrição de acesso em relação a áreas em construção ou reforma, e saídas de emergência independentes.

IV - Edificações com mais de um pavimento em obra, desde que a área a ser vistoriada inclua o nível de descarga e os pavimentos consecutivos, e possua restrição de acesso em relação a áreas em construção ou reforma.

6.1.13.1 Para fins de aplicação dos incisos III e IV do item 6.1.13, nas edificações em obra deve ser considerada a reforma que impossibilita a ocupação da área não vistoriada.

6.1.13.2 Áreas em construção ou reforma devem ser protegidas pela tabela 6M.4 do Anexo A da IT 01 – Parte I.

6.1.13.3 Quando houver na propriedade qualquer edificação não contemplada pela inspeção parcial, e que estejam sem regularização junto ao CBMRN, o proprietário será notificado nos termos da Lei 601/2017.

6.1.14 Na fase de implementação ou construção, o processo de regularização de edificações por fases será permitido, desde que atenda aos seguintes requisitos:

a. deverá ser preenchido e assinado pelo diretor da construtora ou empresa responsável, o termo de compromisso constante no anexo P desta IT, contemplando também o quadro de áreas das fases a serem executadas.

b. a regularização de cada nova área deverá ser realizada juntamente com a renovação das demais edificações e áreas comuns do empreendimento que já realizaram sua liberação, unificando o AVCB destas áreas regularizadas, com validade a contar da data da realização da vistoria.

c. o cálculo da taxa a ser paga para esses casos deverá ser feito em cima do valor integral de toda a área a ser liberada, excluindo-se o valor proporcional do que resta da vigência do AVCB existente.

d. a vistoria será realizada em todas as áreas que serão abrangidas pelo AVCB, independentemente de ser uma nova área ou renovação.

e. no AVCB deverá constar a informação de quais as etapas da edificação estão sendo liberadas, bem como suas respectivas áreas.

f. todos os dispositivos de prevenção e combate a incêndio previstos para as áreas a serem regularizadas devem estar devidamente instalados e em perfeito funcionamento.

g. o AVCB final do empreendimento, somente será emitido após a completa execução de todas as áreas previstas no Projeto de Prevenção Contra Incêndio e Pânico aprovado por este órgão.

6.1.15 Quando da vistoria em edificação e áreas de risco que possua critério de isolamento através de parede corta-fogo, a vistoria deve ser executada nos ambientes que delimitam a parede corta-fogo no mesmo lote e que tenham medidas de segurança contra incêndio independentes.

6.1.16 Após o pagamento da respectiva taxa, o CBMRN deve fornecer um protocolo de acompanhamento da vistoria que contenha um número sequencial de entrada.

6.1.17 Deve ser observado pela Diretoria de Atividades Técnicas a ordem cronológica do número sequencial de entrada e o uso de rotas para a realização da vistoria.

6.1.18 Devido à peculiaridade do tipo de instalação ou ocupação, passíveis de serem regularizadas através de projeto para eventos temporários, a solicitação do Certificado de Licenciamento de Estruturas Provisórias (CLEP) deve ocorrer com pelo menos 10 dias úteis de antecedência.

6.1.18.1 As vistorias referentas ao CLEP devem obedecer a Resolução Técnica 01 - DAT/CBMRN - Eventos Temporários.

6.1.19 Desconformidades que não interfiram substancialmente nas medidas de proteção contra incêndio existentes na edificação e de fácil execução poderão ser prescritas no AVCB, para que sejam executadas o mais brevemente possível, onde neste caso o AVCB poderá ser emitido com as ressalvas apontadas, sendo tais alterações conferidas o seu atendimento em fiscalizações posteriores.

6.1.19.1 O Diretor da DAT do CBMRN poderá avocar a decisão sobre emissão de AVCB com ressalvas, com base no relatório de vistoria, quando entender que as não conformidades apontadas são de pouca relevância para as medidas de proteção contra incêndio existentes na edificação; bem como chefes de CAT nas unidades do interior do Estado, em suas respectivas áreas de circunscrição. Em última instância, poderá ser avocada pelo Comandante Geral do CBMRN.

6.1.20 Quando as edificações estiverem sob administração única, será admitida a instalação de sistemas de proteção contra incêndio e pânico interligados, desde que atendam às exigências normativas e tenha a eficiência de todo o sistema atestada pelo Responsável Técnico.

6.2 Documentos necessários para a vistoria de acordo com o risco e/ou medida de segurança existente na edificação e áreas de risco

6.2.1 Documento de Responsabilidade Técnica

a. De instalação e/ou de manutenção das medidas de segurança contra incêndio;

b. De instalação e/ou de manutenção dos sistemas de utilização de gases inflamáveis;

c. De instalação e/ou manutenção do grupo motogerador;

d. De conformidade das instalações elétricas, conforme IT 41;

e. De instalação e/ou manutenção do material de acabamento e revestimento quando não for de classe I;

f. De instalação e/ou manutenção do revestimento dos elementos estruturais protegidos contra o fogo;

g. de instalação e/ou manutenção do sistema de pressurização de escadas;

h. de instalação e/ou manutenção do sistema de hidrantes ou mangotinhos;

i. de instalação e/ou manutenção do sistema de chuveiros automáticos;

j. De inspeção e/ou manutenção de vasos sob pressão;

k. De instalação e/ou manutenção da compartimentação vertical de shaft e de fachada envidraçada ou similar;

l. Dos sistemas de controle de temperatura, de despoeiramento e de explosão para silos;

m. Para o sistema de hidrantes:

1) plano de manutenção de hidrantes com o respectivo documento de responsabilidade técnica e comprovação de execução deste plano, conforme NBR 13714.

2) laudo de aceitação do sistema de hidrantes na primeira vistoria e o respectivo documento de responsabilidade técnica.

n. Para o sistema de proteção contra descargas atmosféricas (SPDA), laudo do SPDA com respectivo documento de responsabilidade técnica.

o. Para o abastecimento por gás encanado, laudo de estanqueidade da tubulação do sistema de gás encanado e o respectivo documento de responsabilidade técnica.

p. De laudo de estanqueidade de produtos perigosos;

q. da licença de funcionamento para instalações radioativas, nucleares ou de radiografia industrial, ou qualquer instalação que trabalhe com fontes radioativas. Documento emitido pela Comissão Nacional de Energia Nuclear (CNEN), autorizando o funcionamento da edificação e área de risco;

r. De outros sistemas, que visem certificar as condições de segurança e funcionalidade de sistemas, quando solicitados pela Diretoria de Atividades Técnicas.

6.2.1.1 O documento de responsabilidade técnica deve ser emitido para os serviços específicos de instalação e/ou manutenção das medidas de segurança contra incêndio, previstas na edificação e áreas de risco.

6.2.1.2 O documento de responsabilidade técnica de instalação é exigido quando da solicitação da primeira vistoria da edificação e áreas de risco, ou quando alteração ou ampliação da edificação.

6.2.1.3 O documento de responsabilidade técnica de manutenção é exigido quando da renovação da licença do Corpo de Bombeiros.

6.2.1.4 Pode ser emitido um único documento de responsabilidade técnica, quando houver apenas um responsável técnico pelas medidas de segurança contra incêndio instaladas, contendo as descrições das respectivas atividades.

6.2.1.5 Podem ser emitidos vários documentos de responsabilidade técnica desmembrados com as respectivas responsabilidades por medidas específicas, quando houver mais de um responsável técnico pelas medidas de segurança contra incêndio instaladas.

6.2.1.6 As sublojas, com área menor que 200m², que fazem parte de um empreendimento, estão acobertadas pelo documento de responsabilidade técnica de todo o empreendimento, desde que devidamente válido.

6.2.2 Atestado de brigada contra incêndio

a. Documento que atesta que os ocupantes da edificação receberam treinamentos teóricos e práticos de prevenção e combate a incêndio, conforme IT/CBMRN 17.

6.2.2.1 As edificações não ocupadas ficam dispensadas de apresentar documentação referente à brigada de incêndio, devendo providenciar tais documentos no ato da renovação.

6.2.3 Planilha de informações operacionais

a. A planilha de informações operacionais constitui no resumo de dados sobre a edificação, sua ocupação e detalhes úteis para o atendimento operacional, conforme modelo constante da IT/CBMRN 16.

6.2.4 Termo de responsabilidade das saídas de emergência

a. Documento que atesta que as portas de saídas de emergência da edificação estão instaladas com sentido de abertura no fluxo da rota de fuga e permanecem abertas durante a realização do evento, quando for permitido.

6.2.5 Quando se tratar de comércio ou armazenamento de fogos de artifício deve-se apresentar:

a. Alvará ou protocolo da solicitação do alvará, expedido pela autoridade competente para produtos controlados;

b. Memorial de segurança contra incêndio das estruturas para as condições descritas na IT/CBMRN 30 quanto à resistência das paredes e elementos estruturais.

6.2.6 Quando se tratar do uso de fogos de artifícios:

a. Cópia da habilitação da função de cabo pirotécnico (bláster), responsável pela montagem e execução do evento.

6.2.7 Memorial de segurança contra incêndio das estruturas:

a. Memorial descritivo dos cálculos realizados para dimensionamento dos revestimentos das estruturas contra ação do calor e outros conforme IT/CBMRN 08.

6.2.8 Atestado de conformidade da instalação elétrica

a. Atestado de conformidade da instalação elétrica, conforme Anexo O.

6.2.9 Relatório de Comissionamento ou Inspeção periódica

6.2.9.1 Relativo aos checklists exigidos para determinada edificação ou área de risco, previstos em Instrução Técnica específica, devidamente acompanhados dos seus respectivos documentos de responsabilidade técnica.

6.2.9.2 Deve ser entregue uma cópia do relatório de comissionamento dos checklists exigidos para a edificação ou área de risco, conforme prescrito na em instrução técnica específica.

6.2.10 Documentos mínimos para protocolo de vistoria de Projeto Técnico

a. ART de instalação ou manutenção das medidas de segurança contra incêndio;

b. Comprovante do recolhimento da taxa de solicitação de vistoria;

c. Preenchimento do formulário de requerimento de vistoria.

6.2.10.1 Os demais documentos devem ser entregues à Diretoria de Atividades Técnicas no decorrer da tramitação dos procedimentos para a obtenção do AVCB.

6.3 Durante a vistoria

6.3.1 Deve haver pessoa habilitada com conhecimento do funcionamento das medidas de segurança contra incêndio para que possa manuseá-los quando da realização da vistoria.

6.3.2 Durante a realização de vistoria, constatada uma ou mais das alterações constantes do item 5.1.7.1 que requeiram a substituição do Projeto Técnico, tal fato deve implicar na apresentação de novo Projeto Técnico.

6.3.3 Durante a realização de vistoria, constatada uma ou mais das alterações constantes do item 5.1.7.2 que requeiram atualização de Projeto Técnico, tal fato deve implicar na atualização deste projeto.

6.3.4 Quando constatado em vistoria que o Projeto Técnico possui alguma não conformidade passível de cassação, o vistoriador deve encaminhar o Projeto Técnico à Diretoria de Atividades Técnicas, onde deve ser submetido à reanálise.

6.3.5 A não conformidade ou a aprovação da vistoria deve ser anotada no relatório de vistoria, que deve ser emitido pelo sistema de acompanhamento de processos, a fim de ser consultado eletronicamente pelo solicitante.

6.3.6 Quando ocorrer a necessidade do primeiro retorno da vistoria na edificação e áreas de risco devido às não conformidades constatadas em vistoria anterior, o interessado deve apresentar o formulário de retorno de vistoria.

6.3.7 A solicitação deve estar assinada pelo solicitante e com todos os dados preenchidos.

6.3.8 As medidas de segurança contra incêndios instaladas na edificação e áreas de risco e não previstas no Projeto Técnico podem ser aceitas como medidas adicionais de segurança, desde que não interfiram na cobertura das medidas originalmente previstas no Projeto Técnico. Tais medidas não precisam seguir os parâmetros previstos em normas, porém, se não for possível avaliar no local da vistoria a interferência da medida de proteção adicional, o interessado deve esclarecer posteriormente por meio de Formulário para Atendimento Técnico (FAT) a medida adotada para avaliação na Diretoria de Atividades Técnicas.

6.3.9 Em local de reunião de público, o responsável pelo uso e/ou proprietário deve manter, na entrada da edificação e áreas de risco, uma placa indicativa contendo a lotação máxima permitida.

6.4 Emissão do Auto de Vistoria do CBMRN

6.4.1 A emissãodo AVCB é realizada por meio eletrônico através do sistema de controle dos processos.

6.4.2 O AVCB somente pode ser emitido para edificação e áreas de risco que tenha todas as medidas de segurança contra incêndio instaladas e em funcionamento, de acordo com o Projeto Técnico aprovado.

6.4.3 Após a emissão do AVCB para a edificação e áreas de risco, o responsável pelo uso e/ou proprietário deve manter o AVCB original ou cópia na entrada da edificação e áreas de risco, em local visível ao público.

6.4.4 Para empresas instaladas dentro de edifícios comerciais, industriais, shoppings e assemelhados, poderá ser realizada inspeção para emissão do AVCB individual das subunidades, desde que a edificação principal possua AVCB vigente.

6.5 Cassação do Auto de Vistoria do CBMRN

6.5.1 Quando constatado pelo CBMRN que ocorreram alterações prejudiciais às medidas de segurança contra incêndio da edificação ou áreas de risco que possua AVCB com prazo de validade em vigência e verificada a necessidade de adequações, deve ser confeccionado um relatório de vistoria, apontando os ajustes a serem realizados, conforme o Regulamento de Segurança contra Incêndio.

5.5.2 O processo de cassação do AVCB deuma edificação deverá seguir o que estabelece a IT 01 – Parte III – Processo Administrativo Infracional.

6.6 Prazos do AVCB

6.6.1 O AVCB terá prazo de validade de 1 (um) ano, salvo para edificações residenciais multifamiliares, que terão prazo de validade de 2 (dois) anos;

6.7 Prazo para realização de vistoria

6.7.1 O prazo para realização de vistoria pela Diretoria de Atividades Técnicas é de até 30 (trinta) dias, prorrogáveis justificadamente por igual período, a contar da juntada do comprovante de pagamento das respectivas taxas.

6.8 Disposições gerais da vistoria

6.8.1 Para renovação do AVCB, o responsável deve solicitar nova vistoria ao Corpo de Bombeiros.

6.8.2 As alterações de dados referentes ao Projeto Técnico, que não impliquem a substituição, devem ser encaminhadas por meio de Formulário para Atendimento Técnico (FAT) juntamente com cópias de documentos que comprovem o teor da solicitação.

6.8.3 O interessado deve comparecer na DAT, CAT ou Seção de circunscrição do município onde se localiza a edificação e áreas de risco com o comprovante do pagamento da taxa referente ao serviço de vistoria.

6.8.4 Os critérios para recolhimento de Taxa de Emissão de Auto de Vistoria (TEAV) nos retornos de vistoria devem obedecer ao prescrito no Item 10.2 desta IT.

6.8.5 Ficam dispensados do pagamento de taxas aqueles contribuintes previstos no artigo 5° da Lei Complementar 247 de 19 de dezembro de 2002, com suas respectivas alterações.

6.8.6 As entidades citadas no item 6.8.5 dispensadas do pagamento de taxas, devem encaminhar o pedido ao Corpo de Bombeiros solicitando tal dispensa.

6.8.7 O proprietário e/ou responsável pelo uso da edificação e áreas de risco é responsável pela manutenção e funcionamento das medidas de segurança contra incêndio, sob pena de cassação do AVCB, conforme previsto no Regulamento de Segurança contra Incêndio.

6.8.8 A Diretoria de Atividades Técnicas deve orientar o interessado para cumprimento das medidas de segurança contra incêndio.

6.8.8.1 Deve-se manter uma cópia do Projeto Técnico na portaria da edificação ou em outro local de fácil acesso, de conhecimento dos brigadistas de incêndio, para uso do Corpo de Bombeiros no caso de sinistro.

6.8.8.2 Para realização da vistoria nas edificações e áreas de risco, o Projeto Técnico, bem como as demais documentações, devem estar presentes para nortear a fiscalização.

6.8.8.3 A vistoria deverá ser realizada em horário comercial e, caso haja necessidade de realização de inspeção em horário alternativo, o interessado deverá realizar tal solicitação via ofício, encaminhado ao Diretor da DAT, o qual avaliará o pedido.

6.8.9 Quando exigido Plano de emergência, deve ser elaborada uma Planta de risco de incêndio, nos termos da IT/CBMRN 16 – Plano de emergência contra incêndio, conforme modelo constante no anexo E.

6.8.9.1 A planta de risco de incêndio deve permanecer afixada na entrada da edificação, portaria ou recepção, nos pavimentos de descarga e junto ao “hall” dos demais pavimentos, de forma que seja visualizada pelos ocupantes da edificação e equipes do Corpo de Bombeiros, em caso de emergências.

6.8.9.2 A Planta de risco de incêndio deve ser conferida pelo vistoriador a partir da primeira vistoria em que a edificação ou área de risco estiver ocupada.

6.10 Emissão do Certificado de Licenciamento do Corpo de Bombeiros (CLCB)

6.10.1 Os critérios para emissão do CLCB devem obedecer ao previsto na IT 42 – Processo Técnico Simplificado (PTS).

7 FORMULÁRIO PARA ATENDIMENTO TÉCNICO (FAT)

7.1 O Formulário para Atendimento Técnico deve ser utilizado nos seguintes casos:

a. Para solicitação de retificação de dados cadastrais da edificação;

b. Para pequenas ampliações de até 10% da área da edificação ou área de risco, limitadas a 500 m², desde que essa ampliação não implique em mudança na altura, na ocupação, nas exigências ou no seu dimensionamento, conforme parâmetros presentes no item 2.5 da IT 43;

c. Para pequenas alterações no projeto técnico;

d. Para adequações de projeto técnico já aprovado de evento temporário, de acordo com o prescrito na Resolução Técnica 01; e

e. Outras situações a critério da Diretoria de Atividades Técnicas.

7.1.1 Caso tenha ocorrido alguma alteração na edificação ou área de risco que não possa ser adequada através de FAT, um novo projeto de proteção contra incêndio deverá ser apresentado, contendo as mudanças.

7.1.2 Durante a fase de análise do FAT, quando da necessidade de responder à Diretoria de Atividades Técnicas sobre qualquer irregularidade ou dúvida, a comunicação pode ser feita por carta resposta, anexada no interior do Projeto Técnico.

7.1.3 Os FATs homologados pela DAT deverão estar anexados aos demais documentos e serem apresentados por ocasião da vistoria da edificação.

7.1.4 Para cada edificação ou área de risco, será permitido o protocolo de, no máximo, dois Formulários para Atendimento Técnico (FAT), não sendo contabilizados os FAT’s relativos a mudança de titularidade. Após a homologação do segundo FAT, qualquer nova modificação ou solicitação deverá ser realizada mediante apresentação de novo Projeto Técnico completo, o qual deverá contemplar:

a) As alterações pretendidas;

b) A incorporação das modificações aprovadas nos FATs anteriores;

c) A indicação expressa da área originalmente aprovada, conforme previsto na IT 43, permitindo a verificação dos limites de ampliação (até 10% da área ou 500 m²) acumulados ao longo das intervenções realizadas.

7.2 Apresentação

7.2.1 A solicitação do interessado deve ser feita conforme Anexo H, confeccionado com recursos de informática, datilografado ou manuscrito com letra de forma legível, em 02 (duas) vias, e pode ser acompanhado de documentos que comprovem os argumentos apresentados.

7.2.2 Na solicitação do FAT deve ser paga a taxa relativa a este serviço, cujo valor é igual ao equivalente a 1 (uma) hora de serviço prestado, conforme item 5.1 do Anexo Único da Lei Complementar nº 247 de 19 de dezembro de 2002, com suas respectivas alterações.

7.3 Competência

7.3.1 Podem fazer uso do presente instrumento os seguintes signatários:

a. Proprietário;

b. Responsável pelo uso; ou

c. Procurador.

7.3.2 Quando o assunto abordado for de natureza técnica, além dos signatários citados acima, o formulário deve estar assinado também pelo responsável técnico.

7.3.3 Quando a edificação tratar-se de condomínio, o signatário deve ser o síndico ou o administrador profissional.

8 SOLICITAÇÃO DE VISTORIA DE FISCALIZAÇÃO POR AUTORIDADE PÚBLICA

8.1 A solicitação de vistoria pode ser encaminhada ao CBMRN por autoridade da administração pública, via ofício, desde que tenha competência legal.

8.2 Apresentação

8.2.1 A solicitação de vistoria pode ser feita via ofício com timbre do órgão público, contendo endereço da edificação e áreas de risco, endereço e telefone do órgão solicitante, motivação do pedido e identificação do funcionário público signatário.

9 CÂMARA TÉCNICA

9.1 A Câmara Técnica é grupo colegiado da DAT para atuar quando da necessidade de analisar e emitir pareceres relativos aos casos que necessitem de soluções técnicas complexas ou apresentarem dúvidas quanto às exigências previstas no CESIP.

9.2 A Câmara Técnica é utilizável a qualquer tempo, quando houver necessidade de estudo de caso especial como forma de garantir ao interessado a avaliação de exigências de projeto técnico ou de vistoria, a exemplo de:

a. Solicitação fundamentada para isenção excepcional de medidas de segurança contra incêndio;

b. Utilização de normas internacionais;

c. Utilização de novos sistemas construtivos ou de novos conceitos de medidas de segurança contra incêndio;

d. quando houver discordância do interessado em relação às não conformidades apontadas em análise ou vistoria, e esgotadas as argumentações técnicas nesta fase;

e. casos em que a DAT entenda que, dada a sua peculiaridade ou complexidade, recomenda-se a avaliação por grupo técnico colegiado.

9.3 Competência para impetrar a Câmara Técnica

9.3.1 Podem fazer uso do presente instrumento os seguintes interessados:

a. Proprietário;

b. Responsável pelo uso;

c. Procurador; ou

d. Responsável técnico.

9.3.2 Quando o assunto abordado for de natureza técnica, além dos signatários citados acima, o requerimento deve estar assinado também pelo responsável técnico.

9.3.3 Quando a edificação se tratar de condomínio, o signatário deve ser o síndico ou o administrador profissional.

9.3.4 O interessado deve apresentar o projeto aprovado, ou plantas referentes ao objeto do pedido, para auxílio na avaliação da Câmara Técnica, salvo nos casos em que os seus integrantes não vejam necessidade dessa apresentação para a emissão de parecer.

9.4 Procedimentos da Câmara Técnica

9.4.1 A Câmara Técnica inicia-se com a apresentação do requerimento de Câmara Técnica (Anexo J).

9.4.2 Na solicitação de Câmara Técnica, deve ser paga a taxa relativa a este serviço, cujo valor é igual ao equivalente a 2 (duas) até 3 (três) horas de serviço prestado, conforme item 5.1 do Anexo Único da Lei Complementar nº 247 de 19 de dezembro de 2002, com suas respectivas alterações.

9.4.2.1 A Câmara Técnica apresentada por exigência específica do Regulamento de Segurança contra Incêndio e/ou Instruções Técnicas deve ser isenta de taxa.

9.4.3 Dado início à Câmara Técnica, cessa-se o cômputo de prazo da análise e/ou vistoria, recomeçando a nova contagem após a publicação da Câmara Técnica em Boletim Geral do Corpo de Bombeiros Militar.

9.4.4 Toda e qualquer solicitação de Câmara Técnica deve possuir a assinatura do proprietário ou responsável pelo uso e do responsável técnico.

9.4.5 O responsável técnico da Câmara Técnica pode ser substituído durante o seu andamento, desde que seja comprovada a anuência do proprietário e/ou responsável pelo uso e acompanhado do respectivo documento de responsabilidade técnica.

9.4.6 A Câmara Técnica pode solicitar, além do levantamento fotográfico, outros documentos complementares.

9.4.7 O resultado da Câmara Técnica deve ser publicado em Boletim Interno.

9.5 Requerimento de Câmara Técnica

9.5.1 É o documento essencial para solicitação de Câmara Técnica que deve conter as informações necessárias para a avaliação, conforme Anexo J.

9.5.2 Quando a edificação e áreas de risco não possuirem Projeto Técnico com plantas junto à Diretoria de Atividades Técnicas, devem ser apresentadas no requerimento de Câmara Técnica as informações sobre a proteção ativa e passiva exigidas pelo Regulamento de Segurança contra Incêndio, bem como deve ser especificado o processo industrial e qualquer risco específico existente (ex.: caldeira, alto forno, produtos perigosos etc.).

9.5.3 No caso do subitem 9.5.2, pode também ser apresentado um croqui, fotos ou mesmo planta para melhor elucidação do pedido.

9.6 Disposições gerais

9.6.1 No caso de indeferimento e havendo contra argumentações ou fatos novos que motivem nova análise, o parecer pode ser revisto, sem necessidade de pagamento de novas taxas, desde que não se altere a solicitação do requerimento original.

10 CRITÉRIOS PARA RECOLHIMENTO DA TARIP E TEAV

10.1 Conforme prescreve o § 7º do art 50 da Lei Complementar 601/17,

os projetos de segurança contra incêndio serão submetidos aos serviços de análise, sendo recolhida 1 (uma) Taxa de Análise de Risco de Incêndio e Pânico (TARIP) para 1 (um) serviço de análise, fazendo jus a uma nova análise para apresentação de correção de erros ou falhas sem que haja novo recolhimento de TARIP, sendo permitida a realização de nova análise, sem o recolhimento desta taxa, nos seguintes casos:

a. edificações ou áreas de risco classificadas como residenciais unifamiliares (grupo A2), hospitais (grupo H2 e H3), depósitos (grupo J3 e J4), parque de tancagem (grupo M2) ou subestação (grupo K1 com sistemas fixos);

b. edificações ou áreas de risco com pelo menos dois desses sistemas: hidrantes, chuveiros automáticos, controle de fumaça, pressurização de escada, sistema de resfriamento ou sistema de detecção;

c. quando se tratar de item(ns) não observado(s) em análises anteriores;

d. quando se tratar de erro na redação de item no relatório anterior; e

e. quando houver ausência de análise decorrente da não abertura de arquivo DWG ou PDF, em análises digitais.

10.1.1 As edificações ou áreas de risco enquadradas nos itens “a” e/ou “b” terão direito a três análises, admitindo-se novas análises somente em casos de ocorrência dos itens “c”, “d” ou “e” a partir da segunda análise.

10.1.2 O item “c” não será aplicado nos casos em que o responsável técnico deixar de apresentar medida de segurança obrigatória para a edificação ou área de risco, ou alterar o projeto durante a fase de análise.

10.2 Conforme prescreve o § 8º do art 50 da Lei Complementar 601/17, as edificações e áreas de risco terão o recolhimento de uma Taxa de Emissão de Auto de Vistoria (TEAV) referente a emissão do AVCB ou AVCBMC, sendo que, quando houver vistoria, o recolhimento de 1 (uma) TEAV permite 1 (um) serviço de vistoria fazendo jus a uma nova vistoria (retorno) para apresentação de correção de erros ou falhas sem que haja novo recolhimento de TEAV, sendo permitida a realização de nova vistoria, sem o recolhimento desta taxa, nos seguintes casos:

a. edificações ou áreas de risco classificadas como residenciais unifamiliares (grupo A2), hospitais (grupo H2 e H3), depósitos (grupo J3 e J4) ou parque de tancagem (grupo M2);

b. edificações ou áreas de risco com pelo menos dois desses sistemas: hidrantes, chuveiros automáticos, controle de fumaça, pressurização de escada, sistema de resfriamento ou sistema de detecção;

c. quando se tratar de item(ns) não observado(s) em vistorias anteriores;

d. quando se tratar de erro na redação de item no relatório anterior; e

e. quando houver ausência de vistoria decorrente da não abertura de arquivo DWG ou PDF, em análises digitais.

10.2.1 As edificações ou áreas de risco enquadradas nos itens “a” e/ou “b” terão direito a três vistorias, admitindo-se novas vistorias somente em casos de ocorrência dos itens “c”, “d” ou “e” a partir da segunda.

11 INFORMATIZAÇÃO DA DIRETORIA DE ATIVIDADES TÉCNICAS

11.1 Por ocasião da informatização da Diretoria de Atividades Técnicas, novas regras de procedimentos administrativos podem ser publicadas pelo CBMRN.